鑄鍛件拋丸機,又稱流水線拋丸機,懸鏈式輸送拋丸機,是青島華鑄公司生產的一種拋丸除銹設備。主要適用于大批量工件的拋丸處理。從結構形式上,一般可分為Q38系列連續通過式,Q48系列普通懸鏈步進通過式、Q58系列積放鏈式等類別。下面華鑄小編給大家簡單介紹一下,如需更專業的資料介紹需聯系我公司專業工程人員。

一,懸鏈式輸送拋丸機的簡介。
鑄鍛件拋丸機是鑄造企業應用最為廣泛的拋丸清理設備,用于鑄件的表面清砂,鍛件、焊接件的表面除銹,以及彈簧、齒輪等表面強化與消除應力處理,通常由以下幾部分組成:
工件輸送系統、拋丸器單元、帶門機構的拋丸室體、工件自旋機構、丸砂分離及循環系統、電器控制系統、除塵及隔音系統等。工件輸送系統可以采用電動行走葫蘆、半自動輸送鏈、普通懸掛鏈、極放式懸掛鏈等多種配置。軌道布置有開式、半封閉式、封閉循環等多種形式。丸砂分離及循環系統由磁選、風選及輸送設備組成。該設備具有良好的適應性,滿足單機多品種鑄件的清理要求,具備高度的自動化程度,減輕人工操作強度,設備穩定可靠,經久耐用,投資少,見效快。

二、系統結構及工作原理。
1、主要組成部件。
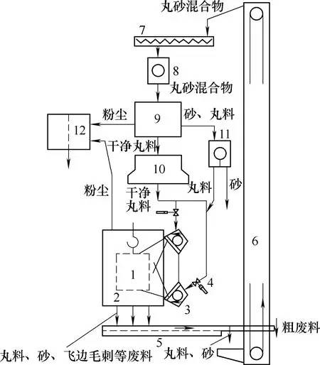
該拋丸機主要由工件1(鑄件等)、拋丸室2、重載拋丸器3、丸料閥4、振動床5、斗提機6、上部螺旋輸送機7、分配螺旋輸送機8、雙磁選9、儲料斗10、副磁選11、膨脹箱12等組成(見圖1、圖2)。

圖1 重載四工位拋丸機系統

圖2 重載四工位拋丸機系統結構及原理
(1).工件( 2).拋丸室 (3).重載拋丸器 (4).丸料閥 (5).振動床 (6).斗提機 (7).上部螺旋輸送機 (8).分配螺旋輸送機 (9).雙磁選(10).儲料斗 (11).副磁選 (12).膨脹箱
2、工作原理。
丸料、砂飛邊毛刺等粗廢料從拋丸室底部進入到振動床,通過振動電動機的振動使物料等進入斗提機,再由斗提機料斗將物料倒入旋轉的螺旋輸送機,將物料輸送到雙磁選進行處理,由雙磁選滾筒初步清理后的丸料進入風選作進一步丸砂分離,通過連接在雙磁選后面的風管,利用除塵器將粉塵清除,干凈的丸料進入儲料斗。但由雙磁選過濾后的砂中仍存在有用丸料,這些丸砂混合物由雙磁選的螺旋輸送到副磁選進行二次分離,最終干凈丸料通過丸料閥控制流量進入拋丸器,由電動機帶動拋丸器轉動,利用離心慣性力的作用讓丸料對工件進行清理。(原理見圖2)
3、主要部件介紹
(1)四工位拋丸機 OH4-850-10/14拋丸機共四個工位(見圖3),在拋丸室側部每個工位布置2臺高效重載拋丸器,整套設備共8個拋丸器,一次進出四掛鑄件,每小時達70掛。并且在每個拋丸器出口設置了新型安全保護門,拋丸室門打開工件進出時,拋丸器電動機可不關閉,避免電動機頻繁啟動,以節約能源與成本。正對拋丸器出口均安裝了保護室體的錳鋼襯板,避免丸料直接拋射在室體上,延長拋丸機使用壽命。拋丸室兩頭安裝了由氣缸帶動開與關的錳鋼板門。頂部吊鉤自旋裝置使進行拋丸的同時工件自旋,確保丸料完全拋射在工件上,工件拋射無死角。頂部密封采用鋼絲毛刷與橡膠板多層密封,可有效防止粉塵與丸料的泄漏,丸料利用率高,損耗少。
圖3 重載四工位拋丸機
(2)拋丸器 丸料通過給料管進入到拋丸器的中心,丸料在此經預加速器加速后從定向套的槽口射出,并由拋丸器的葉片接受丸料,再經加速從而獲得很大的動能,最終丸料在離心力的作用下脫離葉片拋向工件。
(3)丸料閥 丸料閥主要由調節丸料量的調節螺栓、與氣缸連接的推桿、進料口、氣缸、磁性開關等組成。氣缸在壓縮空氣的作用下帶動推桿的轉動,從而調節丸料閥內出口的大小,實現丸料量調節。
(4)振動床 振動床由輸送槽、篩網、粗廢料出口、丸砂出口、振動電動機、帶空心橡膠彈簧支撐架等組成。在拋丸過程中,丸料和砂的混合物落入拋丸室底部,通過底部孔板流入振動床。丸砂通過振動床的篩網進入斗提機;粗廢料則在篩網上輸送到廢料箱。振動床配有兩臺振動電動機,通過電動機的振動輸送物料。振動床固定在支撐上,在振動床與支撐之間裝有空心橡膠彈簧使床體振動。
(5)斗提機 斗提機由斗提殼體、料斗、橡膠簾、導流板、檢修門、張緊架、張緊螺栓、帶輪、減速電動機、速度檢測裝置等組成。斗提機通過斗提頭輪上的電動機驅動皮帶上的斗子將底部丸料倒入頂部螺旋輸送機。驅動電東機帶有制動器,防止意外斷電后或皮帶打滑導致裝有丸料的斗子反轉造成事故。斗提機尾輪裝有速度檢測裝置,以檢測皮帶是否打滑或斷裂。
(6)雙磁選分離器 雙磁選分離器是結合兩組磁選滾筒來分離丸料的。丸砂混合物進入兩個主磁選滾筒,再由兩個磁選滾筒對丸砂混合物進行初步分離。磁選滾筒由一個固定的磁芯和一個旋轉的無磁性外殼組成。當磁選滾筒外殼轉到磁場區,丸料因磁性被外殼吸附,與砂分離,當磁選滾筒外殼轉到無磁區,丸料會因無磁性吸附從外殼剝落而掉入風選分離器做進一步丸砂分離。通過雙磁選后,被過濾掉的砂中仍然含有可用丸料,這些丸砂混合物將通過副磁選二次分離出砂中的有用丸料。
雙磁選中的風選分離器把丸料、砂、粉塵混合物等帶到均衡板上,當混合物通過導流板時,逆向的空氣流將有用丸料從砂和粉塵中分離。
風選中的丸料均衡器防止了混合物以不均勻的流量通過導流板,它保證了丸砂混合物以均勻的厚度流向導流板。減速角鋼設置在每個導流板后面,用于減緩混合物流速以及將它們垂直導入下一級導流板。安裝在最后一級導流板下部的廢料篩,能截住丸料中的雜質,避免損壞拋丸器。通過廢料篩后,清理干凈的丸料進入儲料斗。

圖4 雙磁選原理
1、7.螺旋給料器 2、6.主磁選滾筒 3.分流軌道 4.吸風管 5.檢修門 8.分離條 9.丸料均衡器 10.吸風口 11.減速角鋼 12.導流板 13.廢料篩 14.膨脹箱
(7) 儲料斗 由磁選和風選分離出的干凈丸料儲存在儲料斗中,經過料管向拋丸器供丸料,以確保丸料循環的連貫性。
4、系統基本性能參數
型號:OH4-850-10/14
最大工件裝載量:800kg
最大回轉直徑:φ1000mm
最大工件長度:1400mm
拋丸器數量:8個
單個拋丸器驅動功率:37kW
首次加入丸料量:10000kg
吊鉤距離拋丸室地面高度:1600mm
壓縮空氣耗量:1m?3;/h
三、系統的應用環境
1. 技術特點
由于該拋丸機采用了較先進的拋丸器技術,并在拋丸室上布置了8個拋丸器,同時配備雙磁選丸砂分離器,風選與磁選結合一體,因此拋丸量大,鑄件處理能力強,適合多種鑄件清理,一機多用,節約設備成本。采用智能化控制系統,整個系統操作簡單,減輕了工人操作強度,提高效率。
2. 適用環境
該拋丸機適用于清理鑄件、鍛件、表面硬化、清除表面銹蝕和其他雜質,但不適合清理鋁合金工件,主要是因其粉塵有發生火災和爆炸傷害的危險。
結語
針對我國目前鑄造行業后處理狀況,重載拋丸機簡化了后續處理環節,克服了傳統處理方式占用人員多、設備多、效率低、處理效果不佳等不足,優化了工作環境,實現全程自動化控制,操作簡單,維護方便,節約生產成本,因此該類型大功率拋丸機具有研究及推廣意義。該型拋丸機已在多家柴油機鑄造廠和汽車發動機鑄造廠使用,得到了客戶的好評。
?來源:《金屬加工(熱加工)》






魯公網安備 37021102001171號