高端方坯拋丸清理機的特點及結構分析
方坯拋丸清理機是青島華鑄公司生產的一種拋丸清理設備。要想應用好方坯拋丸清理機,就必須對其的特點、機構原理、使用維護有充分的了解。下面介紹一下國外進口高端方坯拋丸清理機的主要特點、使用與維護進行簡要分析:

一、方坯拋丸清理機的主要特點。
1、高性能耐磨材質:拋丸器耐磨件采用高鉻Cr28%熔模精鑄,其葉片、分丸輪、定向套耐磨平均壽命>1500小時;拋丸室體輥道耐磨件采用高鉻Cr28%熔模精鑄,室體輥道護套平均壽命>15000小時;拋丸室襯板耐磨件主拋區均采用進口瑞典SSAB高耐磨性軋制襯板和英國軋制Mn13%高錳鋼高耐磨性襯板,其壽命是常規耐磨材料的5-10倍,平均壽命>15000小時。
2、直聯高效拋丸器采用美國WHEELBRATER公司及英國SPENCER技術特點而設計的直聯式;新穎高效拋丸器,離心力固定葉片,拆卸八片葉片僅需要5-10分鐘,能耗降低15-20%,拋丸效率高達16-20kg/min·kW,并采用進口瑞典SKF軸承,性能穩定產品可靠。
3、自動滿幕簾分離器在美國PANBORN公司BE型丸渣分離器技術的基礎上,增加了檢測式自動控制滿幕簾技術,確保分離效率>99.8%,合格彈丸中的雜質<0.2%(廢鋼丸粒徑范圍<0.3mm)。
4、嚴謹的密封技術--拋丸密封室方鋼進、出口處設有以溜幕式彈丸幕簾為主的三級防護層(彈丸幕簾、尼龍刷和高耐磨橡膠防護)柔性密封技術,徹底消除了了彈丸的飛濺現象,并確保無粉塵外溢。
除塵凈化--為確保排塵濃度符合GB16297標準,本設計選用了“慣性+濾筒”二級除塵技術,濾筒除塵器為美國唐娜森技術,濾筒為日本東京濾料,可達濾筒壽命>4000小時。
二、拋丸清理的主要結構分析。
1、高效直聯式拋丸器采用的拋丸器為直聯式拋丸器,是參照美國PANGBRON公司與WHEEIBRATOR公司拋丸器技術特點而設計的一種新穎、高效直連拋丸器。(圖 1)

拋丸器由以下主要零部件構成:葉輪及葉輪驅動盤、分丸輪、定向套、葉片、電機、罩殼、熔模精鑄高鉻耐磨防護襯板、進丸管、底板及減震膠板等。
該拋丸器葉輪和驅動電機直接連接,消除了傳動損耗,去除了損耗件—傳動皮帶,減少了維修工作量。另外,它占地面積小,布置靈活,容易滿足拋射帶的布置,還具有整體更換性能,維修方便。
該拋丸器有如下特點:
(1)、葉片裝卸方便迅速:因本拋丸器葉片是從葉輪中心插入的,通過葉輪旋轉產生離心力固定葉片,所以不需要任何固定裝夾具,拆卸八片葉片僅需要5-10分鐘。

(2)、高效率:電機和拋丸器葉輪直接連接,消除了因皮帶傳動產生的動力損耗,能耗降低15-20%,拋丸效率高達16-20kg/min·kW。
(3)、高壽命:由于拋丸器的關鍵易損件葉片、分丸輪、定向套采用了高鉻熔模精密鑄造工藝制造,鑄件可順序凝固、無縮松及縮孔、氣孔及砂眼等鑄造缺陷,其耐磨壽命是砂型鑄造的5-10倍,平均壽命>1500小時。
(4)、低噪音:拋丸器軸承均選用瑞典 SKF 軸承,電機和拋丸器葉輪直接連接,去除了易損件—傳動皮帶,降低了設備的噪音,單機噪音<85 分貝。

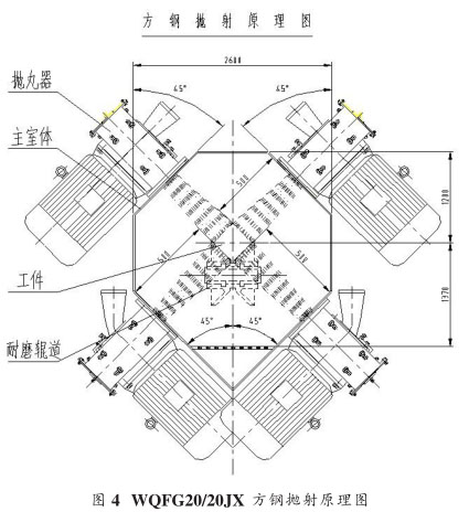
2、方坯拋射原理。
為保證拋丸效率及生產綱領,根據工件特征,本機采用了四臺37kW高效拋丸器,拋丸量為560kW/臺,其拋射帶與方鋼各平面垂直安裝,彈丸密度可達250kg/m2 ,使彈丸的覆蓋率大于98%,確保拋丸除銹等級:ISO8501-1:1988 A.B Sa2.5,粗糙度為GB6060:Ra25~50。
3、彈丸分配系統。
彈丸分配系統由扇形彈丸控制器、輸丸管構成。
彈丸流量控制器為美國 WEELBRATER 公司的氣動控制供丸技術,通過手工調整扇形閘門的大小,無級調整拋丸量,從而達到不同輥道速度時,相應改變拋丸量,確保不同生產率及輥道輸送速度下的工件表面處理質量。拋丸量可通過操縱臺上的電機電流表間接動態顯示,該彈丸控制器無卡死和漏丸現象。該彈丸控制器還具有閘門開啟與關閉在線檢測,適時的與工件到位相配合,以防拋丸器空拋打擊室體。

三、拋丸室及其彈丸密封措施
1、拋丸室。
拋丸室用型鋼框架及鋼板(δ=12)焊接而成,保證有足夠的剛度和強度。
該機拋丸量大、拋丸速度高、拋丸帶密集、拋丸距離短、因此彈丸對護板破壞極為嚴重,導致高鉻耐磨鑄鐵護板無法正常生產,為確保拋丸室耐磨壽命,拋丸室主拋區內壁均襯有進口耐磨襯板,襯板平均壽命>15000 小時:
主拋區彈丸打擊面裝有組合式進口 Mn13 軋制高錳鋼護板(δ=10mm)。
拋丸室及料斗彈丸摩擦面裝有組合式瑞典進口HD500 耐磨襯板(δ=10mm)。
為防止彈丸打擊漏斗,除拋丸室裝有耐磨襯板,料斗也襯有瑞典進口 HD500 特種耐磨襯板,且在鑄鐵護板與隔柵之間布有篩網,以防大顆粒雜物落漏到螺旋輸送器中堵塞或卡死螺旋輸送器,同時漏斗傾斜面上均有阻丸裝置,使彈丸覆蓋在漏斗溜丸面上,防止彈丸打擊損壞漏斗。

2、彈丸密封裝置。
為防止不同尺寸的方鋼工件進出口處彈丸飛濺,本設計采用彈丸流幕式幕簾、多層高強度尼龍絲和耐磨橡膠復合密封技術,經生產驗證,徹底消除了彈丸飛濺及粉塵外溢現象,同時也減少了故障維修率,提高了設備開工率及生產效率。總之,要想真正用好方坯拋丸清理機,就必須對其的特點、機構原理、使用維護有充分的了解。
上一條:車身鈑金熱成型零件選用什么型號的拋丸機進行表面打砂除銹工藝? 下一條:大門拋丸機,大門專用自動噴砂除銹設備 返回列表